Trilocale in vendita

Montespertoli, Via trieste
€ 185.000
3 locali 3 locali
95 Mq 95 Mq
1 bagno 1 bagno

Trilocale in vendita

Montespertoli, Via trieste

Descrizione annuncio

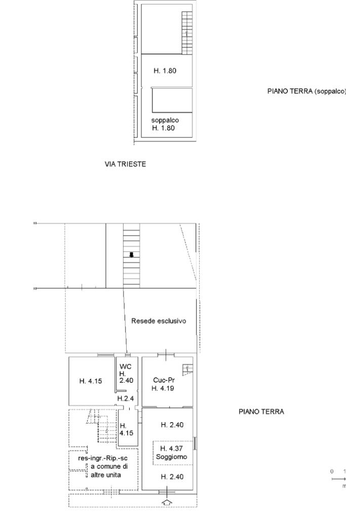
Montespertoli paese, vicino tutti i servizi, vendesi trilocale situato al piano terra con ingresso indipendente, resede esclusivo, garage, cantina e due posti auto.

L'accesso alla proprietà avviene da un ingresso indipendente direttamente nella luminosa zona giorno, composta da soggiorno e cucina separata abitabile. Entrambi ambienti bel illuminati grazie a grandi aperture: il soggiorno disponde di un'ampia finestra, mentre dalla cucina si accede al resede esclusivo di circa 60mq tramite una comoda porta finestra.

Dalla cucina si sviluppa un soppalco abitabile che si estende fino alla zona giorno, ideale come zona studio, relax o area lettura.

La zona notte è composta da un disimpegno che conduce a una camera matrimoniale e a un bagno finestrato con box doccia.

Completano la proprietà un garage, una catina e un ampio resede esclusivo che offre spazio per due posti auto.

La proprietà si trova in buono stato di manutenzione e sono presenti spese condominiali molto contenute (riguardanti le fosse bilogiche).

DEVI VENDERE LA TUA CASA??? CONTATTACI PER UNA VALUTAZIONE GRATUITA E SENZA IMPEGNO!!!

PER MAGGIORI INFORMAZIONI POTETE INVIARE LA RICHIESTA VIA MAIL O CHIAMARE DIRETTAMENTE I SEGUENTI NUMERI 0571608181 - 3938887950 (anche WhatsApp)

Mostra tutto

Nelle vicinanze

Scuole Scuole
Scuola Primaria Niccolò Machiavelli
190 m
Scuola Media Renato Fucini
490 m
Supermercati Supermercati
COOP Montespertoli
270 m
Negozi Negozi
La bottega del fornaio
280 m
Bar Bar
Bar
2,3 Km
Ristoranti Ristoranti
Osteria Del Tempo Perso di celeste
2,0 Km
Il Mezzo Marinaio
2,4 Km
Ristorante La Fonte
2,6 Km
Mostra tutto

Caratteristiche

Rif.:
61057421
Piano:
Terra
Box:
1
Posti auto:
2
Camere da letto:
1
Arredamento:
Parziale
Mostra tutto
Prezzo Prezzo
€ 185.000
Rata mutuo Rata mutuo
€ 873 / mese
Spese annue Spese annue
€ 100
Proponi il tuo prezzoProponi il tuo prezzo

Classe Energetica

G
G
G
G
G
G
G
G
G
EP globale non rinnovabile:
436.33 kW h/m² anno
EP globale rinnovabile:
4.19 kW h/m² anno
EP invernale del fabbricato:
EP estiva del fabbricato:
Anno di costruzione:
1970
Riscaldamento:
Autonomo
Tipo impianto:
A radiatori
Tipo alimentazione:
Metano

Ti interessa visionare l'immobile?

Fissa un appuntamento  Fissa un appuntamento

Richiedi informazioni

Clicca su Leggi per aprire l'informativa
* Questi campi sono obbligatori

Calcola il tuo mutuo

Semplice e senza impegno
Anticipo

( % )
Mutuo

( % )

pochi semplici passi

inserisci i tuoi dati
Questionario completato
Grazie per aver richiesto un appuntamento senza impegno con un nostro Consulente del Credito e Assicurativo.

Hai inserito correttamente tutti i dati necessari e a breve riceverai una e-mail con un link da convalidare per inviare i tuoi dati.
Affiliato
Studio Montespertoli Sas
Via Taddeini, 19 50025 Montespertoli (FI)

Il nostro staff


  • Andrea Appetito
    Affiliato
Via Taddeini, 19 50025 Montespertoli (FI)
Zona: Montespertoli - Ginestra Fiorentina
Mostra su mappa
Orari: 09:00-13:00 / 15:30-20:00
Affiliato
Studio Montespertoli Sas
Via Taddeini, 19 50025 Montespertoli (FI)

2025 Tecnocasa Franchising S.p.A. - P. IVA 08365160152 - Via Monte Bianco 60/A 20089 Rozzano (MI). Ogni agenzia ha un proprio titolare ed è autonoma. Privacy policy | Policy utilizzo | Cookie policy